Предназначена для спуска и подъема оборудования и материалов по наклонным до 30° выработкам угольных шахт любой категории.
Механический тормоз срабатывает автоматически при обесточивании двигателя. Механический тормоз имеет блокировку с использованием кнопочного поста управления КУ-91, не допускающую включение двигателя лебедки от тех пор, пока барабан не будет свободен от воздействия тормозной ленты с помощью электрогидротолкателя. Включение лебедки "вперед" или "назад" и ее остановка производятся с помощью трехкнопочного поста управления КУ-93, установленного на ограждении, а плавный пуск, остановка и регулирование скорости - с помощью рукояток ручных тормозов барабана и фрикциона.
Особенностью конструкции является автоматическое замыкание тормоза при отключении электроэнергии, а также наличие фрикциона, позволяющего плавно регулировать скорость.
Лебедка отличается большим тяговым усилием, высокой скоростью и канатоемкостью при относительно небольшой мощности двигателя.
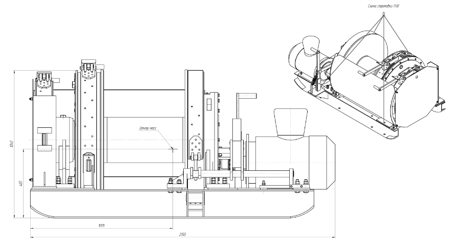
Лебедка состоит из следующих основных сборочных единиц, смонтированных на общей раме:
- барабан с редуктором;
- тормоз ручной;
- тормоз механический;
- ограждение.
Редуктор лебедки - двухступенчатый. Быстроходная ступень - косозубая цилиндрическая передача в неразъемном корпусе. Тихоходная ступень редуктора выполнена в виде дифференциальной планетарной передачи, состоящей из прямозубых колес - центрального и двух сателлитов, установленных в водило, и зубчатого венца в реборде барабана. Водило с установленным на его коническом конце шкивом фрикциона вращается в кронштейне и барабане. Фрикцион предназначен для плавного включения барабана при подъеме и спуске груза, а также для предохранения деталей лебедки от поломок при перегрузке на канате. Барабан лебедки, представляющий собой сварную конструкцию из двух реборд и обечайки с двумя жимками для крепления каната, опирается на подшипники в корпусе редуктора и кронштейне. Обе реборды барабана выполнены заодно с тормозными шкивами. На шкивах барабана и фрикциона установлены три ленточных тормоза, из которых два - с ручным управлением, а один - механический с грузовым затормаживанием и растормаживанием электрогидротолкателем.

|
Канатоемкость барабана, м
|
1200 |
|
Вес лебедки без каната, кг
|
2400 |
|
Габариты, мм
|
1070x2020x1100 |
|
Диаметр каната, мм
|
15 |
|
Тяговое усилие на последнем слое навивки, не более, кН
|
25 (2500) |
|
Скорость каната, м/с
|
1,2 |
|
Двигатель привода, тип
|
АИУ180М4 |
Оплата заказа для юридических и физических лиц.
1. Оплата по Счету, Счет-договору (для юридических лиц и ИП с расчетным счетом).
1.1. После согласования заказа наш менеджер отправляет на email клиента Счет и Спецификацию или Счет-договор (в зависимости от условий сотрудничества).
1.2. При доставке транспортной компанией (ТК) Продавца «до дверей», ее стоимость выделяется отдельной строкой в Счете/Счет-договоре.
1.3. Доставка «до терминала ТК» будет бесплатной.
1.4. Срок действия Счет-договора 7 календарных дней. По их окончании программа автоматически расформировывает Счет-договор – бронь снимается.
2. Оплата товара.
2.1. Оплата принимается по безналичному расчету путем перевода денежных средств с р/с Покупателя на р/с Продавца.
2.2. При оплате наличными вы дожидаетесь курьера и передаёте ему сумму за товар в рублях. Покупатель подписывает документы, вносит денежные средства и получает чек.
2.3. Датой оплаты считается дата зачисления денежных средств на р/с Продавца.
Подробнее об условиях оплаты читайте в разделе Условия оплаты.
Доставка производится по России и странам СНГ. Предлагаем несколько вариантов отгрузки товара.
1. Доставка транспортной компанией (ТК) или курьерской службой Покупателя.
1.1. Мы сотрудничаем с транспортными компаниями:
- Транспортная компания КИТ.
- Деловые линии.
- ПЭК.
Также доставка может быть осуществлена:
- транспортными компаниями;
- авиа- и ж/д транспортом;
- контейнерными перевозками;
- экспресс-почтой, либо курьерской доставкой;
До транспортной компании доставляем бесплатно.
1.2. Покупатель может самостоятельно заказать услуги ТК или курьера и забрать заказ по адресу г. Екатеринбург, ул. Артинская, 6а.
2. Самовывоз со склада Продавца.
Если товар есть в наличии на складе, то заказ можно забрать на следующий день после получения оплаты или в день оплаты при наличии платежки с отметкой банка о проведении платежа. Если товар «под заказ», приезжать за ним можно после уведомления нашего менеджера.
Важно! Перед приездом или отправкой курьера необходимо связаться с менеджером и уточнить готовность товара к отгрузке.
Услуга доступна по адресу г. Екатеринбург, ул. Артинская, 6а, офис 2, с 9:00 до 17:00.
3. Доставка заказа ТК Продавца «до дверей» Покупателя.
Подробнее об условиях доставки читайте в разделе Условия доставки.
